Leave a Message

Thank you for your message. We will be in touch with you shortly.

Explore Our Properties

Property Description

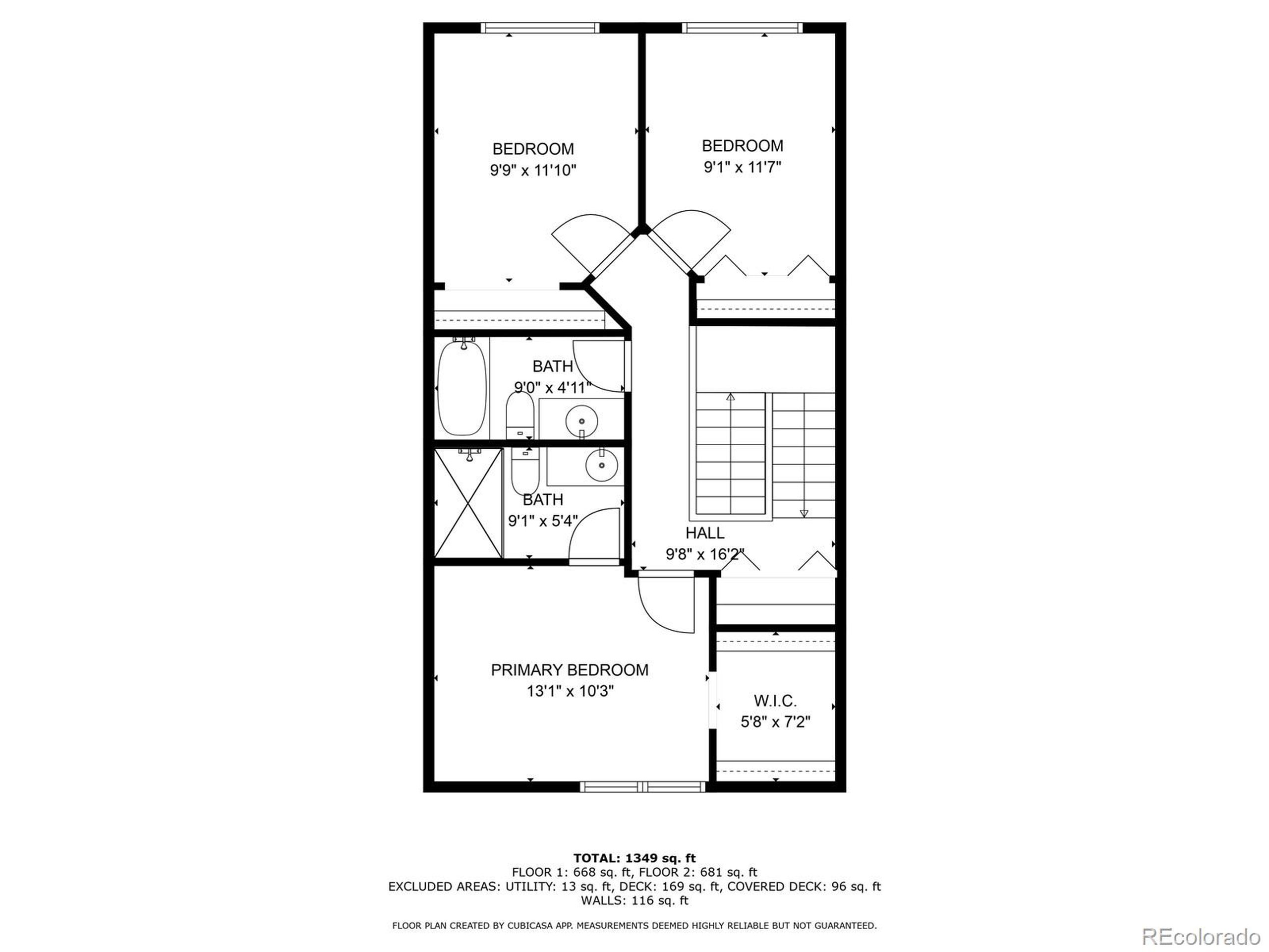
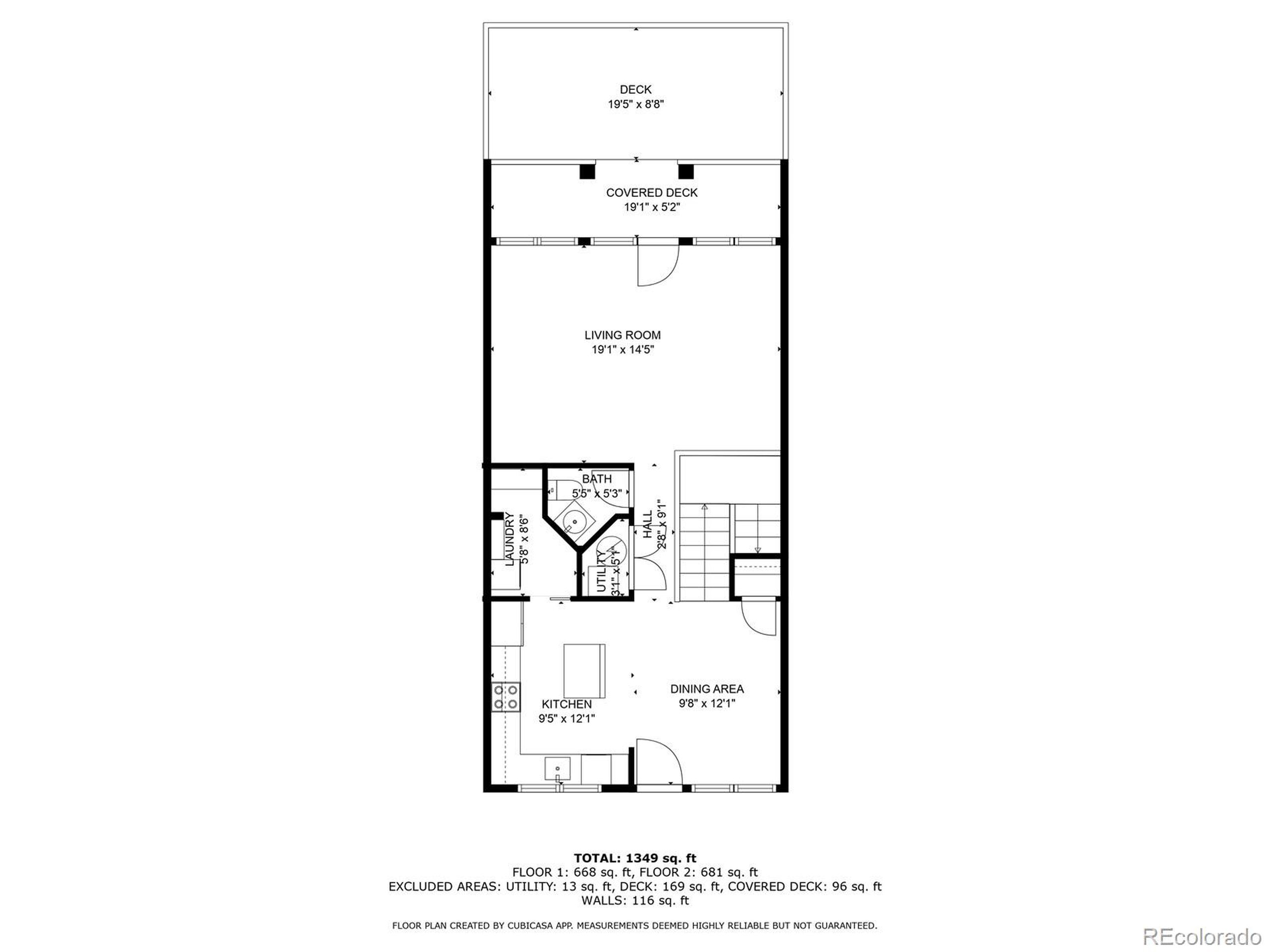
SAFE, STYLISH, and STEPS from CU Boulder-this 3-bedroom, 3-bath townhome offers comfort, modern design and an unbeatable location. Located directly across from the multi use pathway and tunnel on Aurora for quick access to the campus! This quiet and safe townhome offers underground parking, no neighbors upstairs or downstairs and views of the flatirons from the back deck.

Why rent when you can own? This bright, low-maintenance home offers all the benefits of campus-adjacent living with the privacy and independence of a townhome. The light-filled kitchen features granite countertops, stainless steel appliances, and an eat-at island-perfect for meal prep, study breaks, or hosting friends. The dining area and kitchen face the quiet courtyard filled with pine trees. The open-concept living room includes built-in shelving, a convenient guest bathroom, and large south-facing windows that flood the space with natural light. A French door leads to a private, fenced outdoor patio with views of the first 3 Flatirons - great for working and studying outside or relaxing with friends.

Upstairs, the primary suite includes a walk in closet, full en suite bath, while two additional bedrooms (with views!) and large closets share a second full bathroom-an ideal layout for roommates or guests.

Located in a well-kept brick courtyard community just off Hwy 36 and moments from campus, restaurants, shops, and recreation, this is an opportunity to invest in both convenience and long-term value. Whether you're looking for an investment or close to campus housing this move-in-ready townhome checks every box!

Overview

Property Status
Sold
MLS ID
2206900
Property Type
Residential
Year Built
2003

Features & Amenities

Total Area
1,440 Sq.Ft.
Architecture Styles
Contemporary/Modern
View Description
Mountain(s)
Stories
2
Garage Spaces
2.0
Water Source
City Water, Other Water/Sewer
Utilites
Electricity Available
Roof
Composition
Heat Type
Forced Air
Air Conditioning
Central Air, Ceiling Fan(s)
Appliances
Dishwasher, Washer, Dryer, Microwave, Disposal
Other Interior Features
Eat-in Kitchen, Open Floorplan, Pantry, Kitchen Island
Sewer
Other Water/Sewer, Community
HOA Amenities
Trash, Snow Removal, Maintenance Structure, Water/Sewer
Elementary School
Creekside
Middle School
Manhattan
High School
Boulder
School District
Boulder Valley Dist RE2
Sales Price
$810,000
Real Estate Tax
$5,075/yr
HOA
$475/mo

Downloads

2800 Aurora Ave 121

Schedule a Tour

We would love to help you see this beautiful home! As a full-service brokerage, we can help you tour. Please submit an offer, and answer questions about the buying process.

Enter a valid email

Thank you

for your interest in 2800 Aurora Ave 121, Boulder, CO 80303

back to page
2800 Aurora Ave 121
Navigate
2800 Aurora Ave 121
explore in 3d

I'm Interested In

2800 Aurora Ave 121

or
  • CallZori Levine

    License #FA100068141

    (646) 263-6991
  • Homes that reflect lifestyle and long-term value

    Opportunities Across Boulder

    Explore a curated selection of featured properties representing Boulder’s diverse neighborhoods and architectural styles.

    • 3080 7th St Active Under Contract

      $3,650,000

      3080 7th St, Boulder, CO 80304

      • 5 Beds
      • 5 Baths
      • 5,464 Sq.Ft.
    • 1440 Reed Ranch Rd For Sale

      $2,400,000

      1440 Reed Ranch Rd, Boulder, CO 80302

      • 2 Beds
      • 3 Baths
      • 2,778 Sq.Ft.
    • 3394 Cripple Creek Trl H15 For Sale

      $725,000

      3394 Cripple Creek Trl H15, Boulder, CO 80305

      • 2 Beds
      • 2 Baths
      • 1,064 Sq.Ft.
    • 2001 Lincoln St 2113 For Sale

      $658,000

      2001 Lincoln St 2113, Denver, CO 80202

      • 2 Beds
      • 2 Baths
      • 1,142 Sq.Ft.
    • 3747 Talisman Pl D For Sale

      $412,000

      3747 Talisman Pl D, Boulder, CO 80301

      • 2 Beds
      • 1 Bath
      • 880 Sq.Ft.
    • 352 Shawnee Ln For Sale

      $360,000

      352 Shawnee Ln, Superior, CO 80027

    View All Properties

    Follow Us On Instagram